Компактний розподільний пристрій із повністю ізольованим герметичним електричним кільцем середньої напруги
Сонячні фотоелектричні об'єднувальні коробки 500V-1500V 20A-630A
Трифазний 100-2000кВт фотоелектричний мережевий розподільчий шафа
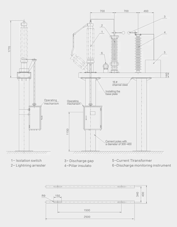
Розумна/компактна коробкова підстанція 24 кВ (20 кВ).Пристрій захисту від заземлення нейтральної точки роз’єднувача GW13, виготовлений компанією Lugao, призначений для захисту ізоляції нейтральної точки трансформатора від перенапруги блискавки, перенапруги комутації та (перехідної) перенапруги промислової частоти. Lugao має професійне виробниче обладнання та багатий досвід експорту, і запаси, що зберігаються, можуть бути доставлені швидко.
Пристрої захисту від заземлення нейтральної точки роз’єднувача Lugao GW13 в основному використовуються в ланцюгах нейтральної точки силових трансформаторів 110 кВ і 220 кВ. Вони захищають ізоляцію нейтральної точки трансформатора від пошкодження перенапругою та дозволяють трансформатору перемикатися між режимами роботи із заземленою та незаземленою нейтральною точкою. Якщо потрібен одночасний захист від блискавки, частоти живлення та комутаційних перенапруг, розрив і розрядник можна підключити паралельно для захисту. Захист нейтралі серії GW13 від перенапруги — це повний набір, який включає в себе роз’єднувач, розрядник з оксиду цинку, розрядний проміжок і трансформатор струму. Він відрізняється високою теплоємністю та відмінним захистом, гнучкими конфігураціями та простотою використання. Щоб задовольнити потреби користувача, можна вибрати чистий дизайн зазору або комбінацію роз’єднувача та розрядного зазору.
Технічні характеристики пристрою захисту GW13
| ltem |
одиниця |
Аргумент |
||
| Модель продукту |
|
Lugao-GW13-110 |
Lugao-GW13-220 |
|
| Номінальна напруга |
КВ |
110 | 220 | |
| Витримує напругу нейтралі трансформатора |
Витримувана напруга повної та відсіченої блискавки (пікова) |
КВ |
250 | 400 |
| 1 хв частота живлення (ефективне значення) |
КВ |
95 | 200 | |
| Роз'єднувач нейтралі |
Номінальний струм |
A | 630 | 630 |
| Робочий механізм |
|
CS14G (ручний) або CJ2 (електричний) |
||
| Розрядник оксиду цинку |
Номінальна напруга (RMS) |
КВ |
72 | 144 |
| Постійна робоча напруга |
КВ |
58 | 116 | |
| Опорна напруга постійного струму 1 мА |
КВ |
103 | 205 | |
| Залишкова напруга струму грозового імпульсу |
КВ |
186 | 320 | |
| Розрядний проміжок |
Діапазон відстані між електродами |
мм | 90-150 | 220-320 |
| Діапазон розрядної напруги промислової частоти |
КВ |
50-83 | 100-166 | |
| Імпульсна розрядна напруга 1,2/50 мкс |
КВ |
120-190 | 250-320 | |
| Трансформатор струму |
Тип |
|
Залитий епоксидною смолою повністю закритий стовп типу 10кв |
|
| Коефіцієнт трансформації |
|
100/5200/5300/5,40015,50015,600/5 |
||
